
2 Beds
2 Baths
1,280 SqFt
2 Beds
2 Baths
1,280 SqFt
Key Details
Property Type Single Family Home
Sub Type Freehold
Listing Status Active
Purchase Type For Sale
Square Footage 1,280 sqft
Price per Sqft $453
MLS® Listing ID A2243486
Style Bi-level
Bedrooms 2
Lot Size 6,500 Sqft
Acres 6500.0
Property Sub-Type Freehold
Source Calgary Real Estate Board
Property Description
Location
Province AB
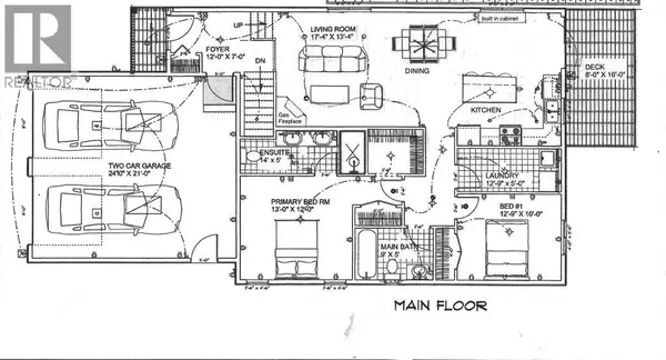
Rooms
Kitchen 1.0
Extra Room 1 Main level 17.33 Ft x 13.33 Ft Living room
Extra Room 2 Main level 12.00 Ft x 8.50 Ft Kitchen
Extra Room 3 Main level 12.00 Ft x 7.00 Ft Dining room
Extra Room 4 Main level 13.00 Ft x 12.00 Ft Primary Bedroom
Extra Room 5 Main level 6.33 Ft x 5.00 Ft Other
Extra Room 6 Main level 14.50 Ft x 5.00 Ft 4pc Bathroom
Interior
Heating Forced air
Cooling None
Flooring Carpeted, Tile, Vinyl Plank
Fireplaces Number 1
Exterior
Parking Features Yes
Garage Spaces 2.0
Garage Description 2
Fence Not fenced
View Y/N No
Total Parking Spaces 4
Private Pool No
Building
Story 1
Architectural Style Bi-level
Others
Ownership Freehold









